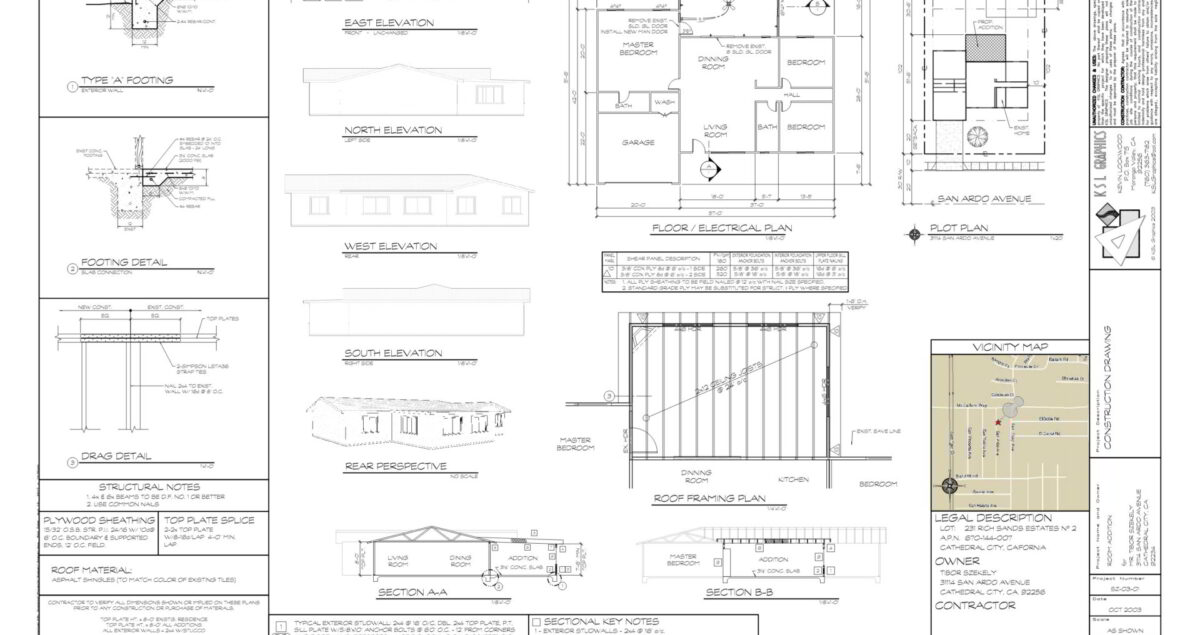
Sample Room Addition

KSL Graphics plan layout